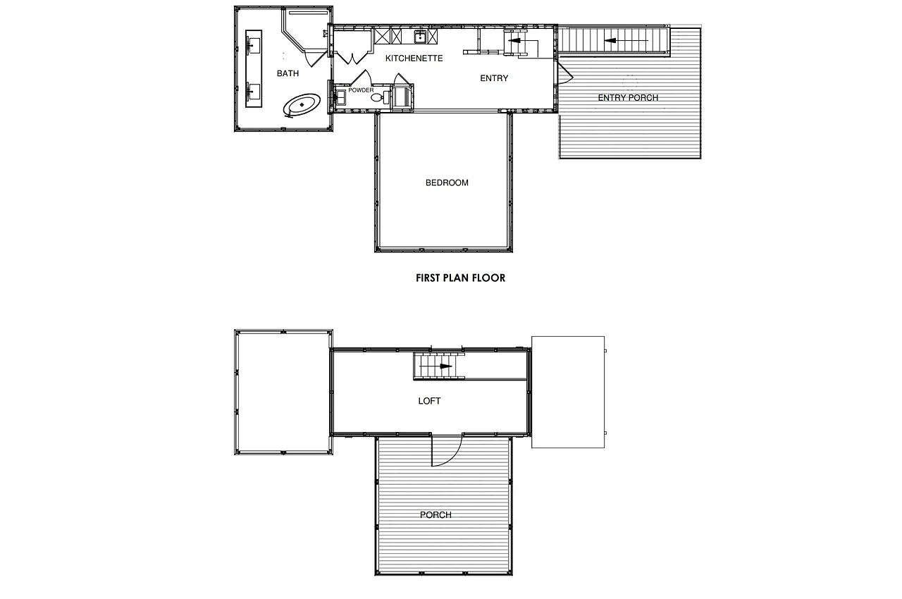
钢架上的漂浮树屋——灵感来自小女孩的草图,孩子们的想象力永远不会停止激发!

2021-11-24 Environmental design 2399 3 6

有点什么

China · Other Industries

钢架上的漂浮树屋——灵感来自小女孩的草图,孩子们的想象力永远不会停止激发!

2021-11-24 Environmental design 2399 3 6

有点什么

China · Other Industries
Tree House,Architectural design,Children's paintings,
Tree House,Architectural design,Children's paintings,
Tree House,Architectural design,Children's paintings,
Tree House,Architectural design,Children's paintings,
Tree House,Architectural design,Children's paintings,
Tree House,Architectural design,Children's paintings,
Tree House,Architectural design,Children's paintings,
Tree House,Architectural design,Children's paintings,
Tree House,Architectural design,Children's paintings,
Tree House,Architectural design,Children's paintings,
Tree House,Architectural design,Children's paintings,
Tree House,Architectural design,Children's paintings,
6 4
用户其他作品 查看更多
评论

留言板 (3)

救救岳父 2021-11-24
回复

很有创意

MX 2021-11-24
回复

把孩子的想法辅助实践的爸爸妈妈也很棒

芒贝贝 2021-11-24
回复

童心无限

点赞 评论 收藏 返回顶部
收藏
创建收藏夹

创建收藏夹

收藏夹名称
确定
在线客服
返回顶部
发送验证码

创建

阅读并同意用户协议 用户协议.

发送验证码

返回 完成