首页
作品集
TOP榜
分享你的作品
登录
|
注册
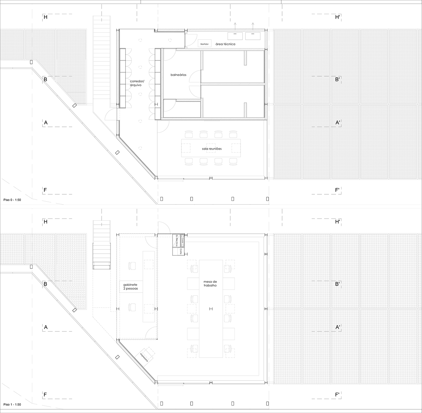
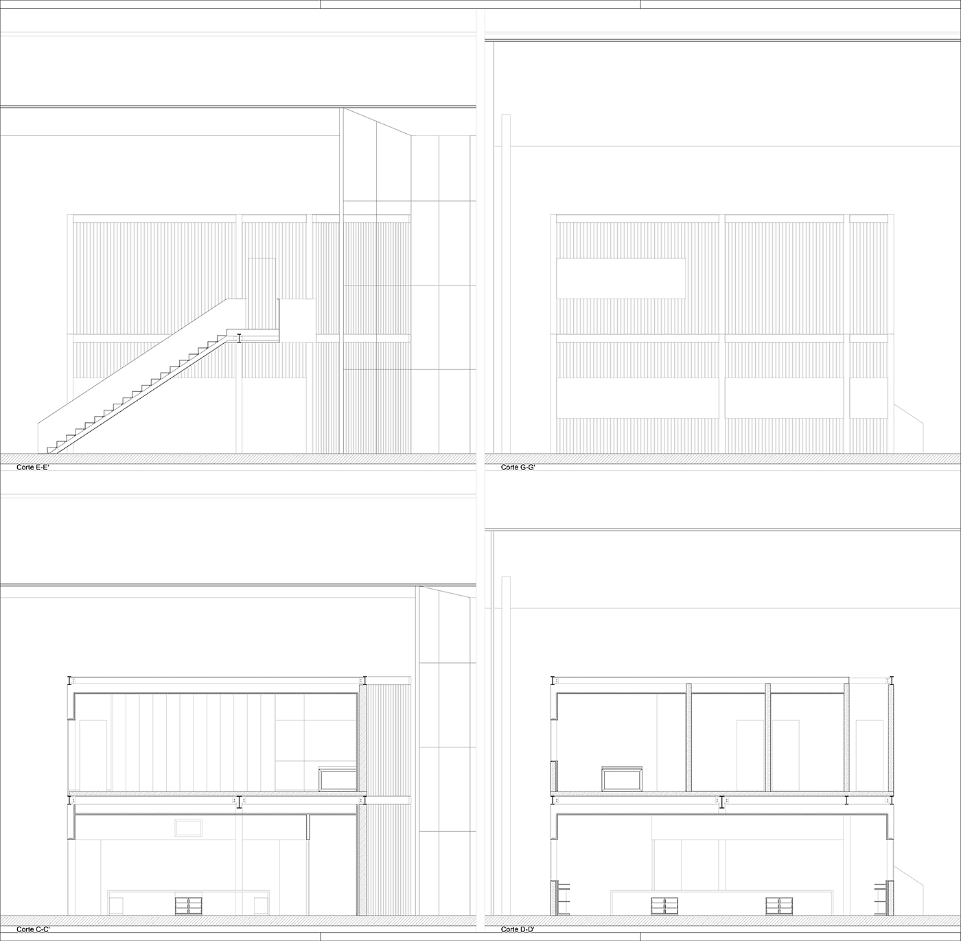
Sardo Cash & Carry
2021-09-19
Other Industries
89
0
0
关注
私信
Behance
Other Industries
Sardo Cash & Carry
2021-09-19
Other Industries
89
0
0
关注
私信
Behance
Other Industries
0
1
评论
留言板
(0)
评论为空
Behance
Other Industries
关注
私信
标签
版权声明
点赞
评论
收藏
返回顶部
收藏
创建收藏夹
创建收藏夹
收藏夹名称
确定
在线客服
返回顶部
登录
新用户?
创建账号
登录
重置密码
创建账号
已有账号?
登录
发送验证码
创建
阅读并同意用户协议
用户协议
.
重置密码
请输入电子邮件以重置密码。
发送验证码
返回
完成
留言板 (0)
评论为空