Renovation of Old Houses in Benma New Village, Siming District, Xiamen

2020-09-03 Environmental design 1836 3 4

林伟民

China · Environmental design

Renovation of Old Houses in Benma New Village, Siming District, Xiamen

2020-09-03 Environmental design 1836 3 4

林伟民

China · Environmental design

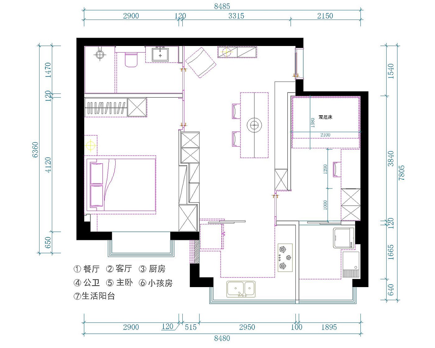
This case is a downtown school district house. The owner's request is very clear. The function is to meet the reading needs of children.

Northern Europe,
Northern Europe,
Northern Europe,
Northern Europe,
Northern Europe,
Northern Europe,
4 2
用户其他作品 查看更多
评论

留言板 (3)

扎哈 2020-09-04
回复

Renovation of old houses?

林伟民 作者 2020-09-03
回复

Functional requirements

林伟民 作者 2020-09-03
回复

点赞 评论 收藏 返回顶部
收藏
创建收藏夹

创建收藏夹

收藏夹名称
确定
在线客服
返回顶部
发送验证码

创建

阅读并同意用户协议 用户协议.

发送验证码

返回 完成