【2023年 iF设计奖】Attic_House

2023-05-12 Environmental design 726 0 4

iF DESIGN

China · Other Industries

【2023年 iF设计奖】Attic_House

2023-05-12 Environmental design 726 0 4

iF DESIGN

China · Other Industries
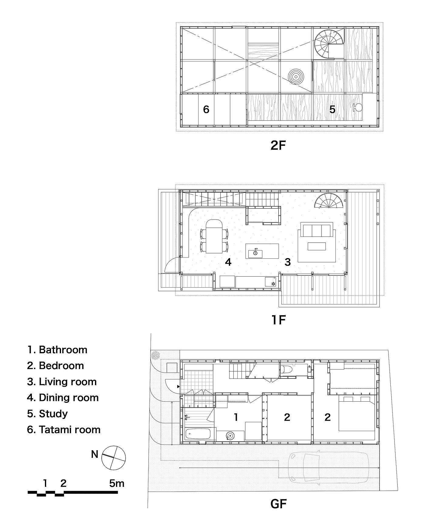
Architectural design,residence,
Architectural design,residence,
Architectural design,residence,
Architectural design,residence,
Architectural design,residence,
Architectural design,residence,
Architectural design,residence,
4 3
用户其他作品 查看更多
评论

留言板 (0)

评论为空

点赞 评论 收藏 返回顶部
收藏
创建收藏夹

创建收藏夹

收藏夹名称
确定
在线客服
返回顶部
发送验证码

创建

阅读并同意用户协议 用户协议.

发送验证码

返回 完成