Torrensville小屋——与城市普通的棕砖房屋形成鲜明对比~

2019-05-21 Environmental design 1859 2 13

冰樱雪

China · Digital Intelligence

Torrensville小屋——与城市普通的棕砖房屋形成鲜明对比~

2019-05-21 Environmental design 1859 2 13

冰樱雪

China · Digital Intelligence
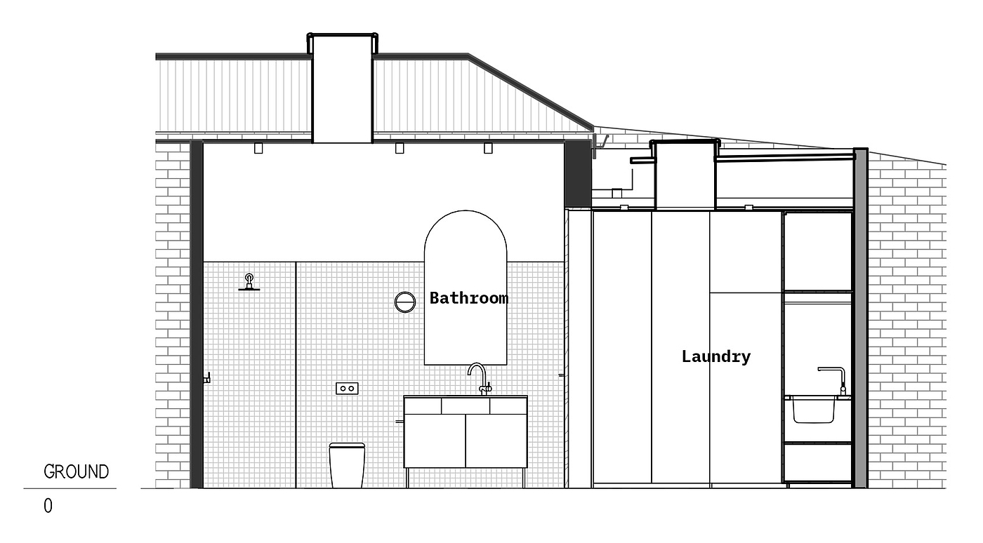
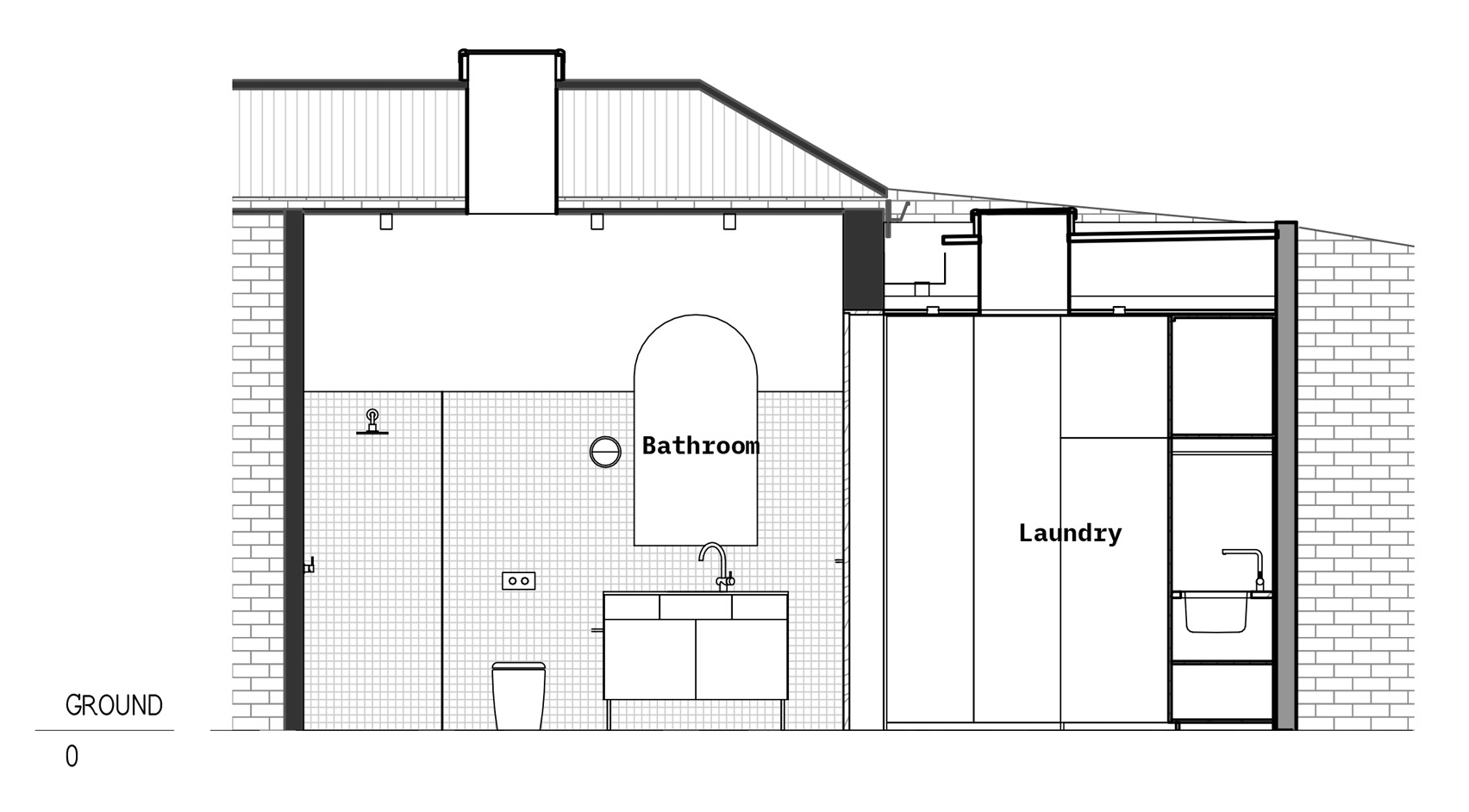
Interior design,Architectural design,Torrensville,
Interior design,Architectural design,Torrensville,
Interior design,Architectural design,Torrensville,
Interior design,Architectural design,Torrensville,
Interior design,Architectural design,Torrensville,
Interior design,Architectural design,Torrensville,
Interior design,Architectural design,Torrensville,
Interior design,Architectural design,Torrensville,
Interior design,Architectural design,Torrensville,
Interior design,Architectural design,Torrensville,
Interior design,Architectural design,Torrensville,
13 13
用户其他作品 查看更多
评论

留言板 (2)

牛MO王 2019-05-21
回复

颜色有点杂乱

GG 2019-05-21
回复

小门洞设计的很独特

点赞 评论 收藏 返回顶部
收藏
创建收藏夹

创建收藏夹

收藏夹名称
确定
在线客服
返回顶部
发送验证码

创建

阅读并同意用户协议 用户协议.

发送验证码

返回 完成