Light Luxury Modern Simple Private Club Design

2023-05-02 Environmental design 2283 3 17

铭御筑空间设计

China · Environmental design

Light Luxury Modern Simple Private Club Design

2023-05-02 Environmental design 2283 3 17

铭御筑空间设计

China · Environmental design

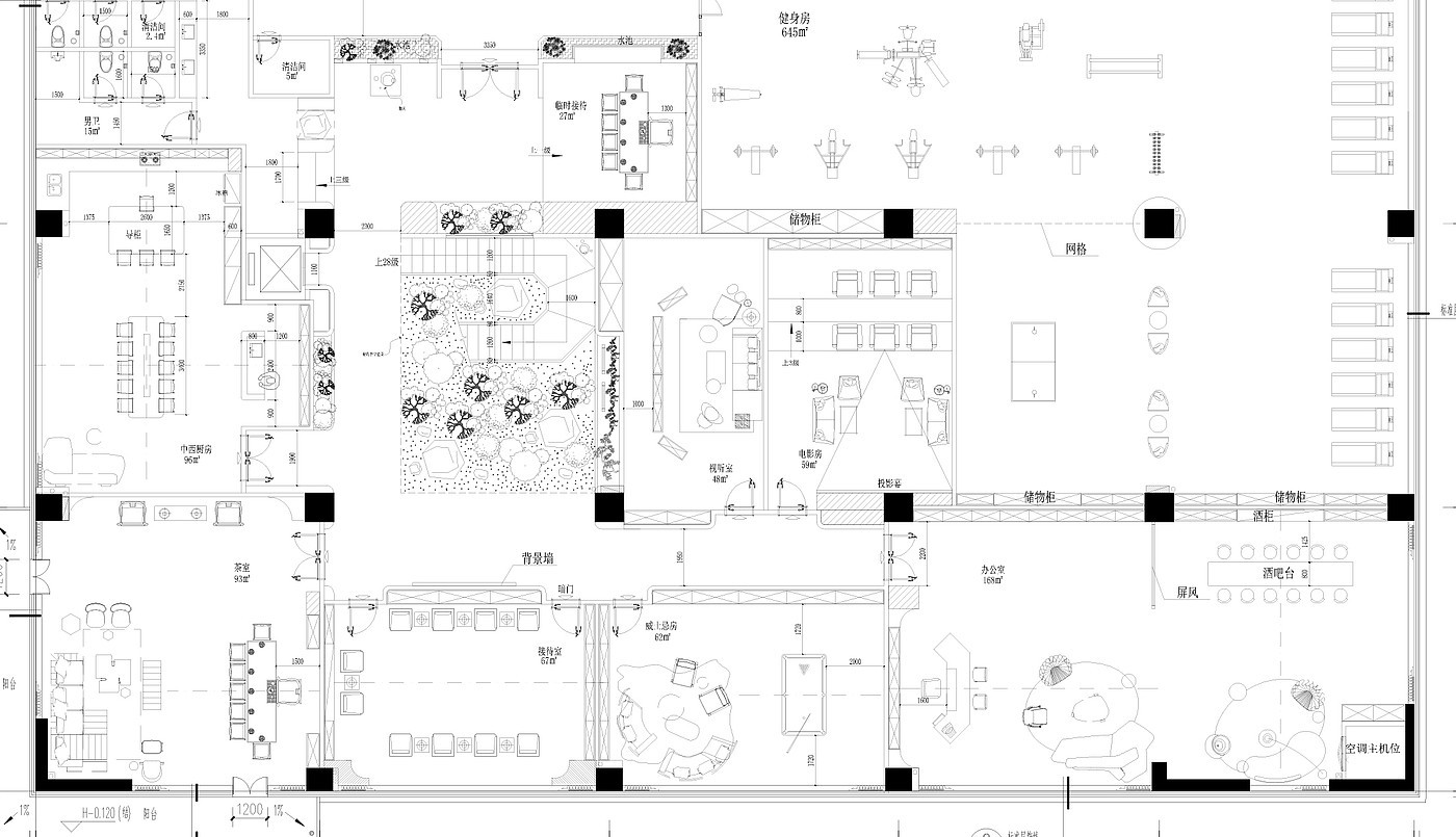
The perfect combination of work and leisure, luxury club office fashion and comfort

The overall use of materials: stone, metal, wood, green plants,
The overall use of materials: stone, metal, wood, green plants,
The overall use of materials: stone, metal, wood, green plants,
The overall use of materials: stone, metal, wood, green plants,
The overall use of materials: stone, metal, wood, green plants,
The overall use of materials: stone, metal, wood, green plants,
The overall use of materials: stone, metal, wood, green plants,
The overall use of materials: stone, metal, wood, green plants,
The overall use of materials: stone, metal, wood, green plants,
The overall use of materials: stone, metal, wood, green plants,
17 1
用户其他作品 查看更多
评论

留言板 (3)

皇甫光启 2023-05-04
回复

this is good

岳帅星 2023-05-04
回复

High-end atmosphere on the grade

公西扬 2023-05-04
回复

Light Luxury

点赞 评论 收藏 返回顶部
收藏
创建收藏夹

创建收藏夹

收藏夹名称
确定
在线客服
返回顶部
发送验证码

创建

阅读并同意用户协议 用户协议.

发送验证码

返回 完成