One stone and one wood are all views (three-story villa plan design)

2017-08-04 Environmental design 1682 0 8

佛说肾疼

Environmental design

One stone and one wood are all views (three-story villa plan design)

2017-08-04 Environmental design 1682 0 8

佛说肾疼

Environmental design
Plane concept,

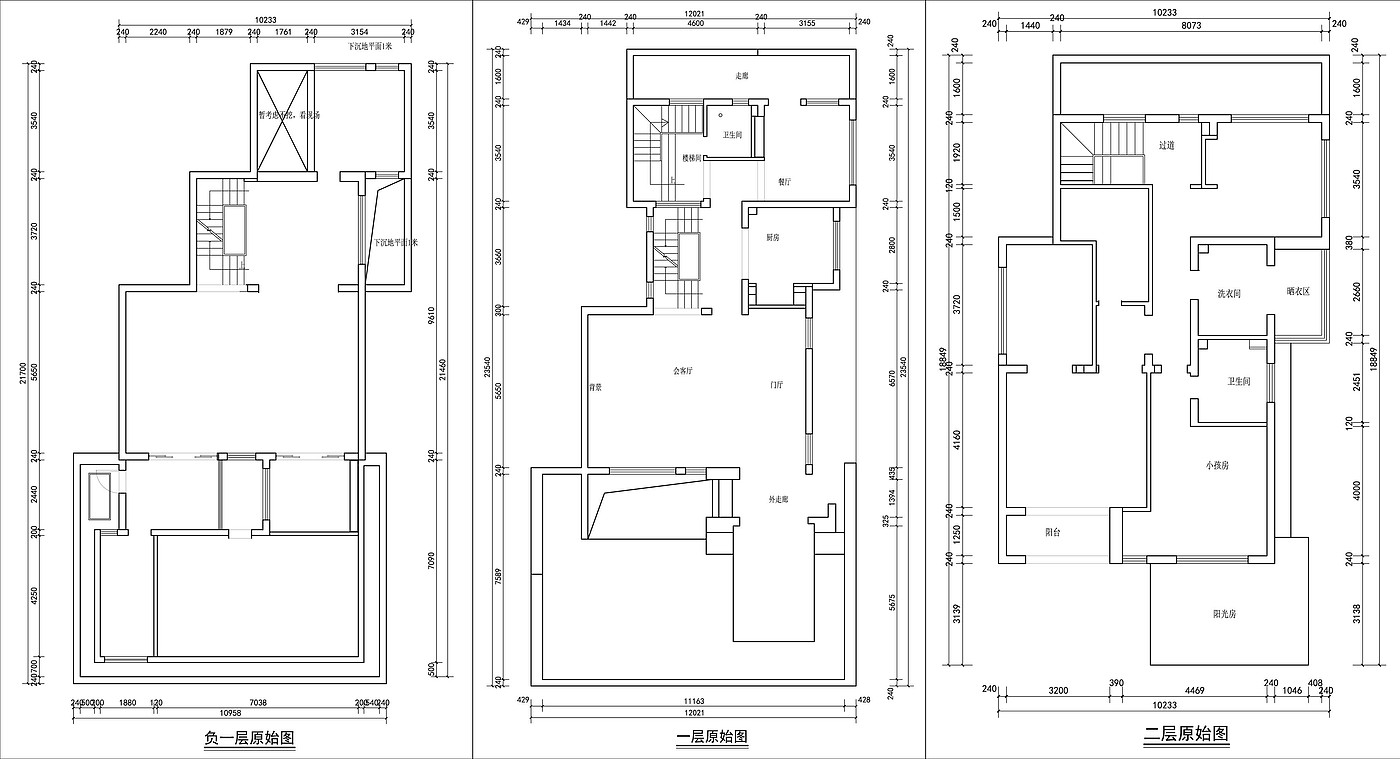
The conceptual design of the three-story villa.

Plane concept,

The "isolated island" mode may be a more spatial expression used in the recent scheme. In addition to interspersing paths with each other to achieve an enlarged space and increase the interest of living, it can also make the whole space more flexible and convenient. This is also a new sense of living experience that I have been advocating.
However, some garden landscaping techniques are also used in indoor space, and indoor and outdoor echo are harmonious and unified with nature. As Kengo Kuma's "Negative Architecture" said: "What kind of architectural model may appear without deliberately pursuing symbolic meaning, not deliberately pursuing visual needs, and not deliberately pursuing possessiveness......"
What I want to express is what kind of spatial expression, living space, and experience can be achieved without deliberately pursuing something with a sense of form......
This scheme, because it is a living mode of residence and office, needs to achieve separation, privacy and display as a whole. With the advantage of the roof of the top floor, the office area is placed on the top floor, the second floor is used as the living room, and the first floor is used as the function of receiving guests, dining and guest rooms. The three layers of the whole are interconnected, but in fact they do not disturb each other.
Step by step, one scene, one painting, one flower, one leaf, one love, move to change the scene. Walking through the artistic atmosphere at home is evocative.

Plane concept,
8 2
评论

留言板 (0)

评论为空

标签

点赞 评论 收藏 返回顶部
收藏
创建收藏夹

创建收藏夹

收藏夹名称
确定
在线客服
返回顶部
发送验证码

创建

阅读并同意用户协议 用户协议.

发送验证码

返回 完成