Melt House,沉浸式住在绿色田园中~

2022-08-20 Environmental design 2052 3 9

苏蕊蕊蕊蕊蕊

China · Digital Intelligence

Melt House,沉浸式住在绿色田园中~

2022-08-20 Environmental design 2052 3 9

苏蕊蕊蕊蕊蕊

China · Digital Intelligence
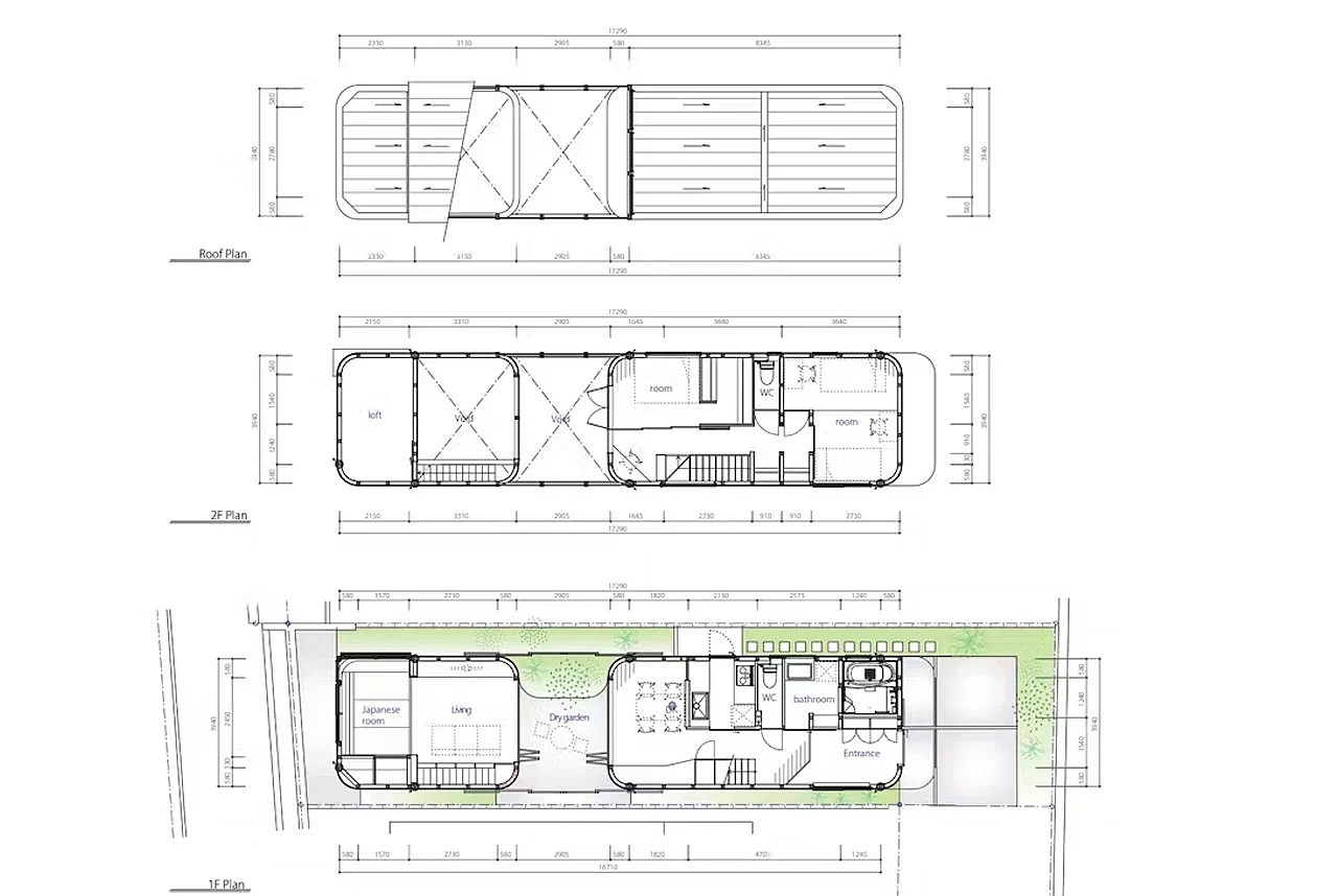
Melt House,Japanese room,green,Botany,
Melt House,Japanese room,green,Botany,
Melt House,Japanese room,green,Botany,
Melt House,Japanese room,green,Botany,
Melt House,Japanese room,green,Botany,
Melt House,Japanese room,green,Botany,
Melt House,Japanese room,green,Botany,
Melt House,Japanese room,green,Botany,
Melt House,Japanese room,green,Botany,
Melt House,Japanese room,green,Botany,
9 10
用户其他作品 查看更多
评论

留言板 (3)

绝对还想他 2022-08-20
回复

简直了~~ 童话世界!

黑色幽默 2022-08-20
回复

我想去o(*^▽^*)┛

小家族 2022-08-20
回复

点赞 评论 收藏 返回顶部
收藏
创建收藏夹

创建收藏夹

收藏夹名称
确定
在线客服
返回顶部
发送验证码

创建

阅读并同意用户协议 用户协议.

发送验证码

返回 完成