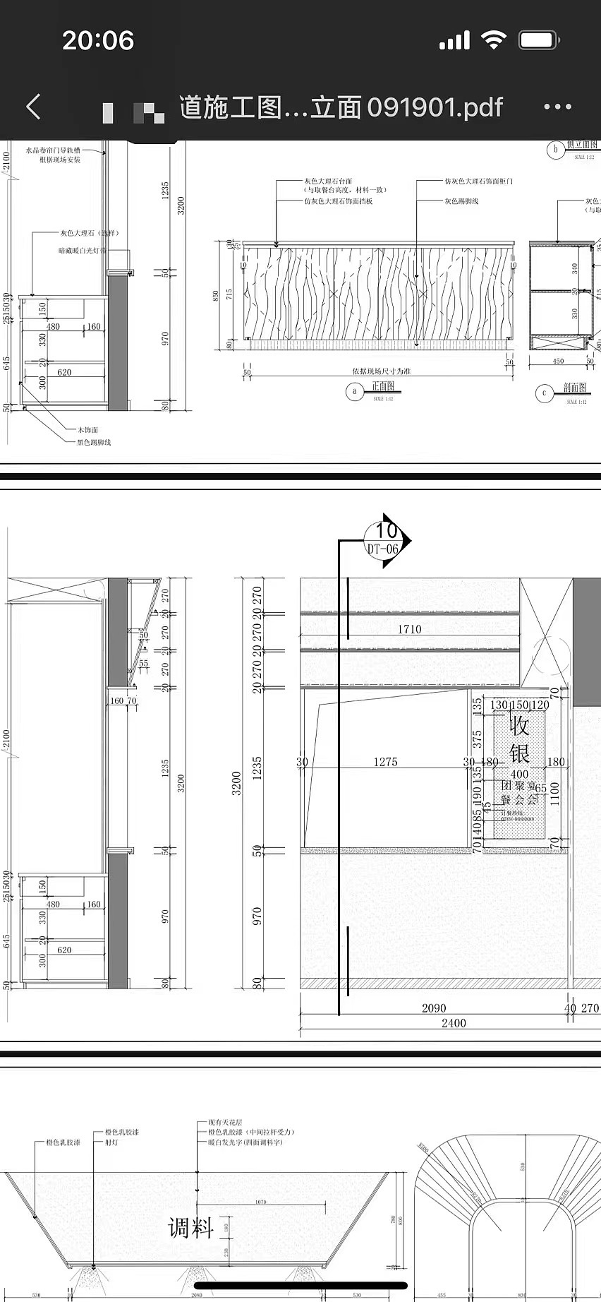
Cashier Area Effect Diagram and Site PK

2022-10-29 Environmental design 885 2 2

知煜空间设计

China · Environmental design

Cashier Area Effect Diagram and Site PK

2022-10-29 Environmental design 885 2 2

知煜空间设计

China · Environmental design

The simulated design effect is compared with the undecorated field effect.
Party A's first draft and all drawings passed
Party A in the north is generous?
Or is the design very NIEC ...... you quality your fine quality?

Catering space design,Interior design,Restaurant chain design,Restaurant,Design,indoor,
Catering space design,Interior design,Restaurant chain design,Restaurant,Design,indoor,
Catering space design,Interior design,Restaurant chain design,Restaurant,Design,indoor,
2 0
用户其他作品 查看更多
评论

留言板 (2)

朋克养生 2022-10-31
回复

The effect is good.

随缘 2022-10-31
回复

This is actual combat

点赞 评论 收藏 返回顶部
收藏
创建收藏夹

创建收藏夹

收藏夹名称
确定
在线客服
返回顶部
发送验证码

创建

阅读并同意用户协议 用户协议.

发送验证码

返回 完成