Himejima shrine | Sanshuden

2019-12-19 Environmental design 369 0 0

ADP

Other Industries

Himejima shrine | Sanshuden

2019-12-19 Environmental design 369 0 0

ADP

Other Industries

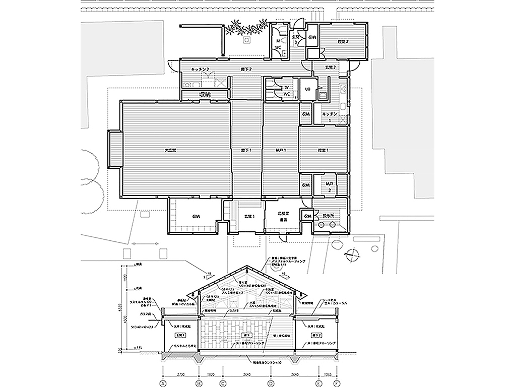
The Sanshuden of shrine rooted in local community has a large hall and office, and structured to respond to diverse needs such as wedding, lecture and art exhibition by softly dividing with "Shoji" made by handmade Japanese paper. Although it is a sacred space, it will use in a casual, The same wood for the wall as structure made it a gentle space. "Chigi" seen in the shrine building don't protrude like horn but sank under the roof and swung diagonally. It will be compensated for stress of the X-Y axes. This shows the long history with the worshiper and the shrine, and it is designed as a "gathering place" that the visitors keep in memory.

asiadesignprize,ASIA,design,award,Products,Architecture,Yijiang,
asiadesignprize,ASIA,design,award,Products,Architecture,Yijiang,
asiadesignprize,ASIA,design,award,Products,Architecture,Yijiang,
asiadesignprize,ASIA,design,award,Products,Architecture,Yijiang,
asiadesignprize,ASIA,design,award,Products,Architecture,Yijiang,
asiadesignprize,ASIA,design,award,Products,Architecture,Yijiang,

Country
Japan

Year
2018

Client
Himejima shrine

Affiliation
Hashiguchi Architect & Associates

Designer
Shinichiro Hashiguchi

[ASIA DESIGN PRIZE]
[www.asiadesignprize.com/]

0 0
用户其他作品 查看更多
评论

留言板 (0)

评论为空

ADP
点赞 评论 收藏 返回顶部
收藏
创建收藏夹

创建收藏夹

收藏夹名称
确定
在线客服
返回顶部
发送验证码

创建

阅读并同意用户协议 用户协议.

发送验证码

返回 完成